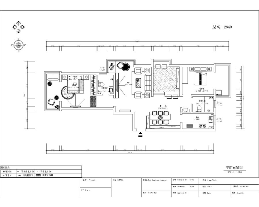
户型:四居 3#C户型
-
日期:2016-04-28
-
点击:1556
户型分析:
设计效果图:



提交信息,试试看!
已有96人提交
找到自家小区,快速获得现成的设计案例!
日期:2016-04-28
点击:1556
户型分析:
设计效果图:



提交信息,试试看!
已有96人提交